ザ・パークハビオSOHO横浜関内の特徴
[物件種別:マンション]
| 賃料/管理費等 | 164,000円/25,000円 | 敷金 | 1ヶ月 | 礼金 | 0ヶ月 |
|---|---|---|---|---|---|
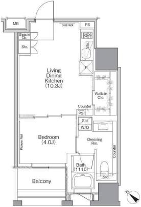
| 間取り | 1LDK | 面積 | 35.38m2 | 築年月 | 新築 |
| 住所 | 神奈川県横浜市中区羽衣町2丁目7−2 | ||||
| アクセス |
京浜東北線・根岸線関内駅
徒歩 5分
ブルーライン関内駅 徒歩 5分 |
||||
- ペット相談可
- エアコン
- オートロック
- 温水洗浄便座
- TVモニター付きインターホン
- 宅配ボックス
- 浴室乾燥機
- バス・トイレ別
- 室内洗濯機置場
- フローリング
- システムキッチン
- インターネット対応
- バルコニー
- 都市ガス
- 下駄箱
- ピアノ相談可
- エレベータ
- 新築
- インターネット無料
- 常時ゴミ出し可能
- ウォークインクロゼット
- トイレ
- 防犯カメラ
ザ・パークハビオSOHO横浜関内の概要
| 名称 | ザ・パークハビオSOHO横浜関内 | 入居時期 | 即可 |
|---|---|---|---|
| 構造 | 鉄筋コンクリート造 | 契約期間 | 2年普通賃貸借 |
| 間取り詳細 | LDK10.3 洋4 | 駐車場 | |
| 所在階/階数 | 14階 (15階建て) | 採光面 | 南西 |
| 取引態様 | 媒介 | 鍵交換費用 | |
| 火災保険費用 | 要 32000円 | 保証会社費用 | 加入要 当社指定:初期費用は賃料等の50%、月次保証料は賃料 |
| 備考 | M-REALプレミアム会費2年:19800円 | ||
| 設備・条件 | オートロック/宅配ボックス/エレベータ/TVモニター付きインターホン/下駄箱/フローリング/バス・トイレ別/浴室乾燥機/室内洗濯機置場/温水洗浄便座/システムキッチン/都市ガス/インターネット対応/インターネット無料/常時ゴミ出し可能/ウォークインクロゼット/トイレ//防犯カメラ/新築/ペット相談可/ピアノ相談可/バルコニー | ||
【ザ・パークハビオSOHO横浜関内】 横浜市中区羽衣町 [マンション(居住用)]
取扱企業
| 取扱会社名 | ピタットハウスセンター南店 賃貸営業部 |
|---|---|
| 所在地 |
〒224-32 神奈川県横浜市都筑区茅ヶ崎中央19番6号 |
| 電話番号 | 045-264-3311 |
| 免許番号 | 神奈川県知事(5)24582号 |
| 設立 | 平成12年7月28日 |
| 定休日 | 毎週水曜日 |
| 営業時間 | 9:30〜18:30 |
| 備考 | 港北ニュータウン・田園都市線沿線のマンション査定業務を行っております。一人暮らし用のシングル物件からファミリー物件・タワーマンション・新築物件まで豊富な情報量で勝負します。お気軽にお問い合わせください! |



[ザ・パークハビオSOHO横浜関内担当者コメント]
新築/ペット相談可/ピアノ相談可/バルコニー